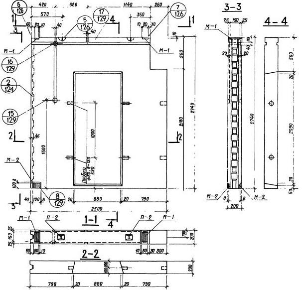
СБВ-25.2.28т-6

Чертеж изделия:
Чертеж СБВ-25.2.28т-6
Характеристики изделия:
ПараметрЗначение
Длина2500 мм
Ширина200 мм
Высота2740 мм
Масса2400 кг
Нормативный документСерия 1.134-1

Блоки внутренних  стен  по Серии 1.134-1.

СБВ-25.2.28т-6   Стеновой блок внутренний.