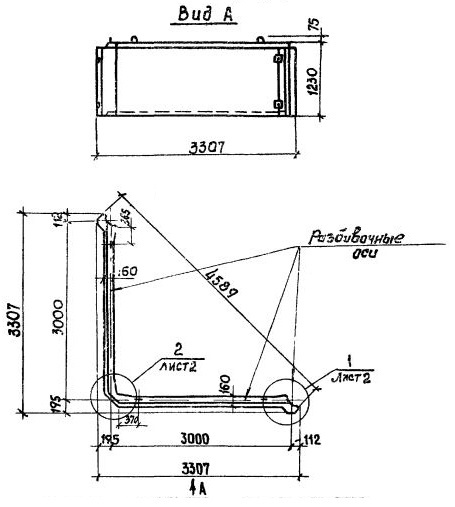
СБУ 3.2-2 к7

Чертеж изделия:
Чертеж СБУ 3.2-2 к7
Характеристики изделия:
ПараметрЗначение
Длина3307 мм
Ширина3307 мм
Высота1230 мм
Масса3000 кг
Нормативный документСерия 3.702.1-4

СБУ 3.2-2 к7  Силосный блок угловой по Серии 3.702.1-4.